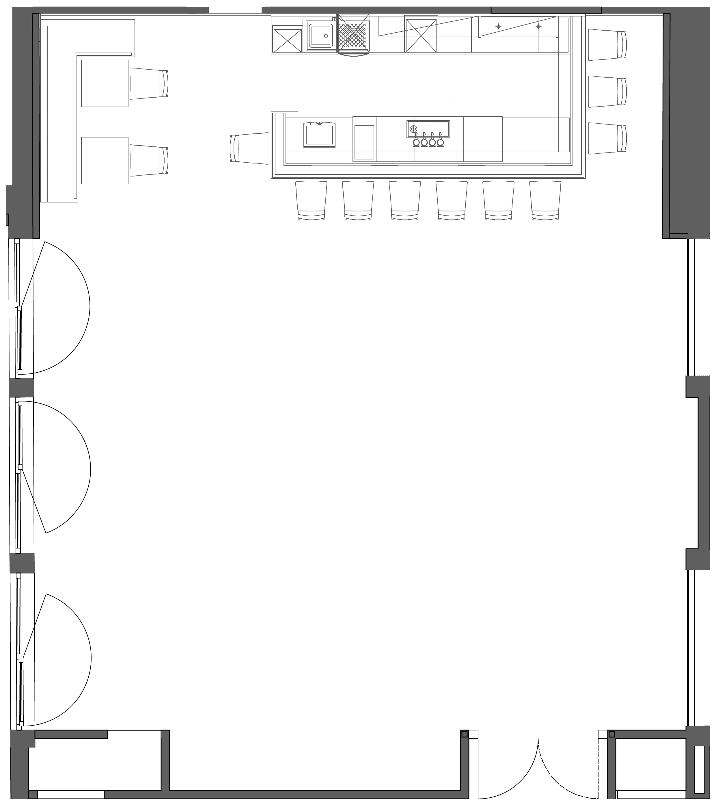
Seminarraum SeminarBar

Raumgröße: 72 m²
Länge/Breite: 7,42 x 9,76 m
Höhe: 2,50 m
Tür Breite/Höhe: 1,80 x 2,40 m
Raumgröße: 72 m²
Länge/Breite: 7,42 x 9,76 m
Höhe: 2,50 m
Tür Breite/Höhe: 1,80 x 2,40 m

Bestuhlung
Teilnehmer (max.)
Sesselreihen
60
Klassenzimmer
30
U-Form
20
Sesselkreis
25
Bestuhlung
Teilnehmer (max.)
Sesselreihen
60
Klassenzimmer
30
U-Form
20
Sesselkreis
25
Die SeminarBar ist sowohl für Feierlichkeiten als auch für Seminare und Tagungen geeignet! Bei Feierlichkeiten bietet die SeminarBar Platz für bis zu 65 Personen bei Tischen.
Die SeminarBar ist sowohl für Feierlichkeiten als auch für Seminare und Tagungen geeignet! Bei Feierlichkeiten bietet die SeminarBar Platz für bis zu 65 Personen bei Tischen.
